| e-mail: matt@hhvferry.com |
| [HOME] [LINKS] [HENGIST] [HORSA] [VORTIGERN] [INDEX PAGES: A B C D E F G H I J K L M N O P Q R S T U V W X Y Z] |
| Click here to return to the Hoverports 2005 index page |
| DOVER HOVERPORT |
| Above: The original Dover hoverport in the Eastern Docks. |
| All 2005 pictures © matt@hhvferry.com |
| Above: The check-in area in 2002 when sailings to Oostende were still available. The SRN4 pylon and propeller on display here were installed when the front of the hoverport was spruced up in 1999. |
| Early hovercraft operations out of Dover by Townsend to Calais ran from a base in the North East corner of the Camber in Dover Eastern Docks but these did not last long and Townsend themselves never followed up an option to purchase the car-carrying SRN4 craft being developed in the 1960s. That was left to British Rail subsidiary Seaspeed and the Swedish Hoverlloyd, based in Ramsgate. The original Seaspeed Dover hoverport was opened in 1968 in the Eastern Docks, directly adjacent to the car ferry terminal, although part of the structure itself (but not the associated hoverpad) is visible in pictures dating from as much as three years earlier. The official opening was carried out by Princess Margaret on 31 July. This was a modern but relatively small building, and certainly not on a comparable scale to Hoverlloyd's Pegwell Bay hoverport just up the coast. Services using Seaspeed's twin craft The Princess Anne and The Princess Margaret were run initially to Boulogne Le Portel, before Calais was also offered on a trial basis in 1970 and then permanently after 1971. The growth of Eastern Docks car ferry traffic, combined with the stretching of Seaspeed's two SRN4s in 1978 and the introduction of the French N500 meant that a rather larger base was by then required and this was duly provided in the Western Docks, adjacent to the Prince of Wales pier and facing the original train ferry dock over the entrance to the inner docks. The original Eastern Docks hoverport location was soon subsumed by the continuing expansion of that part of the port. |
| INSIDE DOVER HOVERPORT |
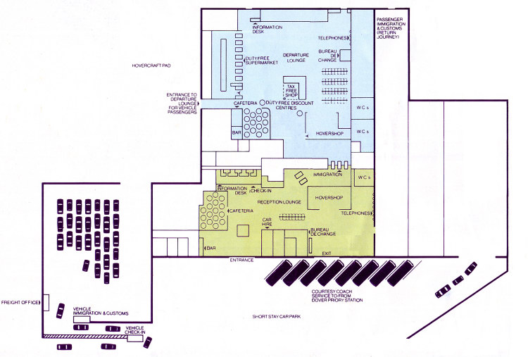
| Above: A Hoverspeed plan of the 1978 Dover hoverport in its heyday. In later years, the amenities available were scaled back somewhat. |
| Above: An early view of the cafeteria in what Hoverspeed called the 'Reception Lounge', effectively the area before passengers passed through Customs and Passports to the departure area. |
![]() |
![]() |
| The new hoverport, delayed by gale damage and massively over budget (costing some £14m compared to the original estimate of £8m) opened for service in July 1978, coinciding with the introduction of the newly extended SRN4 MkIII The Princess Anne. The costs of the new construction were spread between Dover Harbour Board who contributed some £5m for the building of the pad itself and the British Railways Board, owners of Seaspeed, who paid £9m for the terminal and associated facilities. The terminal was officially opened by the Duke of Kent that September and, after the merger of Seaspeed with Hoverlloyd in late 1981, Hoverspeed services were focussed on Dover at the expense of Ramsgate from September 1982 onwards. Although an important consideration in the original planning and siting of the new hoverport was a direct rail link to match that provided at Boulogne, this never materialised - much to Hoverspeed's frustration. Despite this, coach links to Dover Priory station were provided and through traffic from London to Paris proved relatively popular using the hovercraft as opposed to the direct ship-to-train link available from the Sealink ferries between Dover Western Docks and Calais Gare Maritime. |
![]() |
| Below: A view of the second hoverport's location in the Western Docks demonstrating the huge land area (most of it reclaimed) that the new facility took up. |
![]() |
| Below: Another view of the new hoverport in its early years. The Vortigern is in the train ferry dock. |
![]() |
| The Dover hoverport witnessed the demise of the ex-Hoverlloyd SRN4 The Prince of Wales in April 1993 when it caught fire and was burnt out, later being ignominiously demolished that June on the pad by a digger. The three unstretched ex-Hoverlloyd craft had earlier been withdrawn from service in 1991 (the fourth, the Sure had been scrapped in 1983) and thus there was no significant operational impact from this loss. Of the remaining pair, the Swift was donated to the Hovercraft museum near Gosport in 1994 before being unexpectedly broken up there in 2005. The Sir Christopher continued to languish at Dover before being cut up on the pad in 1998. Services continued with the stretched ex-Seaspeed craft, after a brief period in 1991 when it appeared that they too would be permanently withdrawn in favour of the SeaCats first introduced at Dover in June 1991. In the event, the hoverport did receive a dedicated SeaCat linkspan in 1993 (previously the company had split operations with SeaCats running out of the Eastern Docks). In 1993 operations to Boulogne ceased in favour of a SeaCat link out of Folkestone using the 74m SeaCat Hoverspeed Great Britain. The Calais run continued however, usually in the hands of the two operational hovercraft, whilst a service to Oostende commenced in 1998 with the former Holyman Sally 81m SeaCats Rapide and Diamant. This was discontinued in 2003. The hovercraft remained in operation until finally being retired on 1 October 2000. From that date onwards, Hoverspeed ran an ever-changing array of fast craft from parent company Sea Containers' fast ferry stable, including the monohull SuperSeaCats, one year with three of the smaller 74m SeaCats before finally settling for the final 2005 season on the Rapide and Diamant. Rising fuel costs, the loss of duty free, a declining market and fierce competition finally put paid to Hoverspeed who announced after much speculation that they would cease operations entirely on 7 November 2005. Since that date the hoverport in Dover has lain closed and unused. |
![]() |
| Above: The front facade of the Dover Hoverport in June 2005. Although the official announcement of closure was still several months away, the end already seemed near. |
![]() |
| Above & Below: Comparative views from the entrance to the Hoverport showing (above) the view in 2002 when sailings to both Calais and Oostende were still offered and (below) after closure, the scene in December 2005. |
![]() |
![]() |
![]() |
| Above: STOP! Looking past the closed check-in booths in December 2005. |
![]() |
![]() |
| Above & Below: Two views of the front of the empty hoverport in December 2005. |
![]() |
![]() |
![]() |
| Below: The car hire, photo booth and Bureau de Change counters as they were in the 'Reception Lounge' in the early 1980s. |
![]() |
| Above & Below: Two views of the Check-in and Waiting areas on the landward side of the hoverport in 2005 - the ticket sales desk is now situated in the location previously occupied by the Photo Booth and Bureau de Change seen above. |
![]() |
![]() |
| Above: The Duty Free shop in the Departure lounge as it was in the early 1980s. |
| Below: The same shop (on the right) in 2005. |
![]() |
| Above & Below: Two more views of the Departure Lounge in 2005. |
![]() |
![]() |
![]() |
| Below: Sign of the times - Dover Hoverport, December 2005. |
![]() |
| Below: A final view of the Dover hoverport, taken in June 2005. |